Натяжные прессуемые зажимы предназначены для надёжного крепления и натяжения самонесущих изолированных проводов (СИП) при монтаже воздушных линий электропередач. Они обеспечивают прочное соединение с опорами, гарантируя безопасность и долговечность эксплуатации электросетей.
Использование качественных зажимов предотвращает соскальзывание провода, защищает от повреждения изоляции и минимизирует риски аварийных ситуаций. Это ключевые компоненты для строительства и ремонта ЛЭП, позволяющие проводить работы быстро и в соответствии с техническими нормативами.
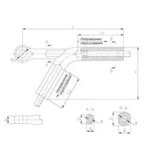
Изделия изготавливаются из высокопрочного алюминиевого сплава, устойчивого к коррозии и механическим нагрузкам. Конструкция обеспечивает равномерное распределение давления на провод, сохраняя его целостность и проводимость.
Мы предлагаем широкий ассортимент для различных задач: натяжные прессуемые зажимы типов НАП, НАС, НАСУС, НМБ, НС и ТРАС. Подберите необходимое решение для вашего проекта.
