• Наличие
    В наличии
Цена по запросу

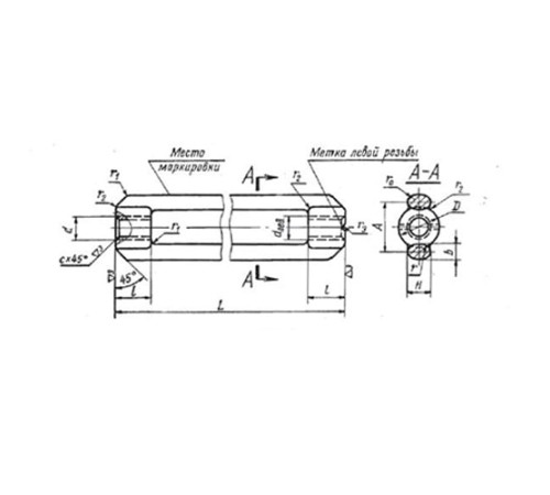
Муфты подвесок стальных трубопроводов предназначены для надёжного крепления и поддержки инженерных коммуникаций в промышленных и строительных объектах. Они обеспечивают устойчивость системы, компенсируют вибрации и температурные расширения.

Изделия доступны с различной допустимой нагрузкой (от 300 до 8000 кг) и для широкого диапазона диаметров труб (от 10 до 36 мм). Это позволяет подобрать оптимальное решение для любого проекта, обеспечивая его долговечность и безопасность.

Муфты изготавливаются из высококачественных марок стали (09Г2С, 12Х18Н10Т, сталь 20, сталь 3), что гарантирует их прочность, коррозионную стойкость и длительный срок службы даже в условиях агрессивных сред.

Отзывов: 0

Нет отзывов об этом товаре.

Вопросов: 0

Пока нет вопросов об этом товаре. Станьте первым!